Lokal użytkowy Muszyna Zdrój
Muszyna Pokaż na mapie ›
Odświeżone: Poniedziałek, 08 Wrzesień, 2025 10:47
1 350 000 zł
Szczegóły ogłoszenia
- Kategoria: Biura i lokale / Sprzedaż
- Przeznaczenie:Inne przeznaczenie
- Powierzchnia:560 m2
- Sprzedaż:Pośrednik
- Cena: 1 350 000 zł
Opis oferty
Okazja ! Muszyna ZdrójOferujemy Państwu nieruchomość z dużym potencjałem o wyjątkowej lokalizacji !
Dom wczasowy / pensjonat /hotel "Zaczarowane Koło) na zboczu południowym góry Malnik w Muszynie Zdroju. Wspaniałe miejsce widokowe !
Aktualnie w pobliżu ośrodka powstaje Wieża Widokowa w najbliższych nieodległych latach ma tu powstać kolejka gondolowa (w planach miejscowych Muszyny Zdroju)
Nieruchomość znajduje się na działce nr 503 o powierzchni 1410 m2 /.
Muszyna Zdrój bardzo lubiana i popularna miejscowość przy granicy państwa aktualnie bardzo dobrze rozwijające się uzdrowisko.
Budynek hotelowy czterokondygnacyjny - 56 miejsc, 15 pokoi o pow. całkowitej 560 m2 Możliwość rozbudowy, przebudowy i zmianie sposobu użytkowania na np. apartamenty wakacyjne, mieszkania itp.
Budynek po remoncie w 2012, wymieniono instalacje, przebudowano pokoje uzupełniono w łazienki z WC, na podłogach panele, parkiet, korytarze ceramika,
Budynek wybudowany bardzo solidnie w latach 30-tych w stylu Art Deco.
Remont generalny w 2012 roku wraz
ze zmianą i przebudową konfiguracji wnętrza w tym pokoi (akt. wszystkie z widokiem na miasto, góry ) wykonano łazienki dla każdego pokoju, dostosowano standard do ówczesnych wymogów.
Budynek usytuowany na ogrodzonej działce z parkingiem, miejscem ogniskowym i podwórkiem.
Istnieje możliwość rozbudowy i nadbudowy hotelu (mocna konstrukcja).
Ponieważ hotel nie działa od 10 lat wymaga odświeżenia, remontu, uzupełnienia w nowoczesny sprzęt, meble, wykonania windy, poprawienia wjazdu, uporządkowania ogrodu i otoczenia.
W stosunkowo krótkim czasie z powodzeniem może być wznowiona działalność hotelarska.
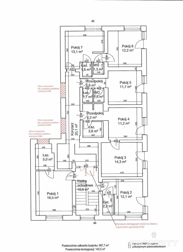
Plany rozkładu pomieszczeń do wglądu w biurze ewentualnie prześlemy na e-maila.
Cena do negocjacji !
Rozkład:
Poziom O -> sala do wykorzystania świetlicowego 80m2, pomieszczenia techniczne -40m2,
Poziom 1 -> 5 pokoi - 18 miejsc
Poziom 2 -> 5 pokoi - 18 miejsc
Poziom 3 -> 5 pokoi - 18 miejsc
Dodatkowe atuty nieruchomości:
Świetna baza wypadowa na stoki narciarskie (wyciągi krzesełkowe i gondolowy) : Jaworzyna Krynicka 10 minut, Wierchomla 15 minut, Powroźnik 5 minut, miejscowość Szczawnik 8 minut, Tylicz 15 minut jazdy samochodem.
Na Słowację granica ok. 5 km. Przepiękna uzdrowiskowa słowacka miejscowość z wodami termalnymi i mineralnymi ok. 35 km.
Park Sensoryczny i Park Wodny w Muszynie,
Plany zagospodarowania tej części miasta przez władze Miasta Muszyna
::DODATKOWE INFORMACJE
Nazwa obiektu: Dom Wczasowy "Zaczarowane"
Dozór budynku: monitoring
Prąd: jest
Gaz: jest
Woda: tak
Dojazd: asfalt
Otoczenie: działki zabudowane
Ogrzewanie: c. o. gazowe i węglowe
Kanalizacja: tak
Internet: TAK
Winda: NIE
Recepcja: TAK
Wysokość kondygnacji : 3,20
Typ powierzchni opis: Pokoje hotelowe
Możliwość parkowania: tak
Własny parking: TAK
Naziemn. miejsc parking.: 1
Wejście: od ulicy
Liczba wejść: 3
Położenie obiektu: centrum
Teren ogrodzony: TAK
Kategoria biurowca: D
Pow. całk. budynku : 560
Pow. całk. biurowa : 560
Pow. całk. handlowa : 560
Ostatnia modernizacja: 2012
Liczba pomieszczeń biurowych: 3
Pow. pom. handlowych od : 15
Liczba pomieszczeń magazynowych: 4
Powierzchnia pomieszczeń magazynowych : 4
Liczba pomieszczeń socjalnych: 15
Powierzchnia pomieszczeń socjalnych : 3
Liczba pomieszczeń sanitarnych: 4
::LINK DO STRONY
http://www.propertynowysacz.pl/oferta.aspx?id=6347059
::KONTAKT DO AGENTA
Lidia Lechowicz
184 - pokaż numer telefonu -
+48 600 - pokaż numer telefonu -
@
Oferta wysłana z systemu Galactica Virgo
Numer oferty: PTY-BS-692
Sprawdź zainteresowanie tym ogłoszeniem
Wyświetlenia
Data dodania
Ostatnio widziany
Obserwujących
Wysłane zapytania
Odsłony telefonu
Powiadom o podobnych ogłoszeniach
Lokalizacja: Muszyna
Kategoria: Nieruchomości » Biura i lokale » Sprzedaż
Cena: od 1147500 zł do 1552500 zł Powierzchnia : od 476 m2 do 644 m2
Chcę otrzymywać powiadomienia o nowych ofertach

Konto firmowe
Na Lento.pl od 29 kwi 2019
Strona użytkownika
- Wypromuj ogłoszenie
- Zgłoś naruszenie
- Drukuj ulotkę
- Edytuj/usuń ogłoszenie
- Udostępnij ogłoszenie
- Dodaj na Facebook






























